Immerso nelle pittoresche colline che circondano Ostuni, la celebre “Città Bianca”, questo progetto residenziale unico unisce in modo armonioso tradizione e modernità.
L’ampia proprietà è situata tra uliveti secolari e le dolci colline della Valle d’Itria, a pochi minuti in auto dal centro storico di Ostuni e dalle spiagge della costa adriatica.
La regione è conosciuta per:
i suoi caratteristici Trulli con i tipici coni in pietra calcarea bianca
gli ampi paesaggi con ulivi e muretti a secco
il clima mediterraneo con oltre 300 giorni di sole all’anno
Project Overview
Project: Construction of a single-storey detached house with the integration of an existing traditional rural building (Trullo)
Location: Rural area in the region of Puglia, Italy
Planning: Soluzioni Tecniche
Documentation: Construction and planning documents (62 pages)
Project status: Design / planning approval phase
The aim of the project is to create a modern, energy-efficient and landscape-integrated home on a spacious plot.
2. Site and Location
Plot size: 9,154 m²
Parcels: 704 and 705
Existing building: Small, historic rural structure (Fabbricato Esistente), preserved and incorporated into the design
Site characteristics:
Rural, surrounded by olive groves and fields
Well integrated into the natural landscape
Quiet, nature-oriented residential location
Mappa Catastale:
Shows the parcels and the boundaries of the building plot.
Contesto Paesaggistico:
Aerial view of the surroundings with the site highlighted.
3. Planning Basis and Building Regulations
Maximum permitted volume: 274.68 m³
Planned volume: 273.63 m³
Maximum permitted building footprint: 100.98 m²
Planned building footprint: 100.60 m²
Usable floor area: 77.51 m²
Covered outdoor areas (Porticato): approx. 38.8–50.3 m²
Parking area according to Legge Tognoli: approx. 40 m² (required for residential use)
The design complies with all applicable regulations and area limits.
4. Architecture and Design
Building:
Single-storey, modern house
Integration of the existing traditional Trullo
Simple cubic volume with clean lines
Orientation and Sustainability:
South-facing main rooms for optimal sunlight
Considered solar exposure for energy efficiency
Roof areas suitable for photovoltaic panels
Green outdoor areas and spacious garden
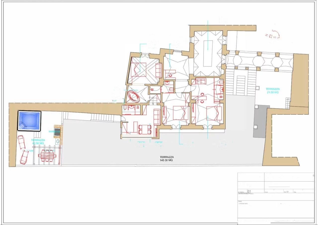
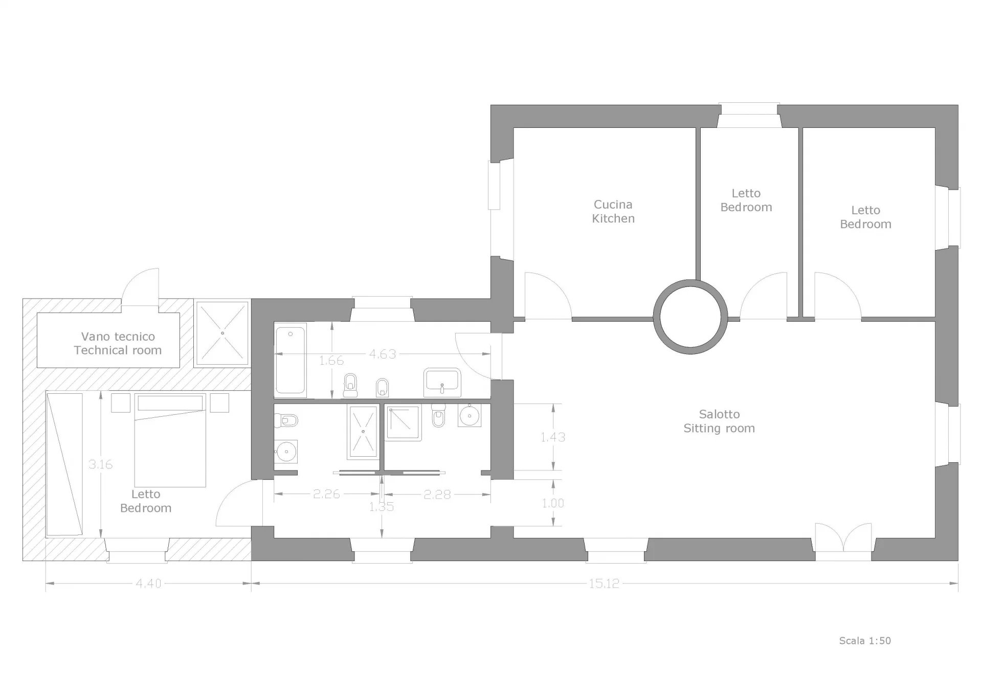
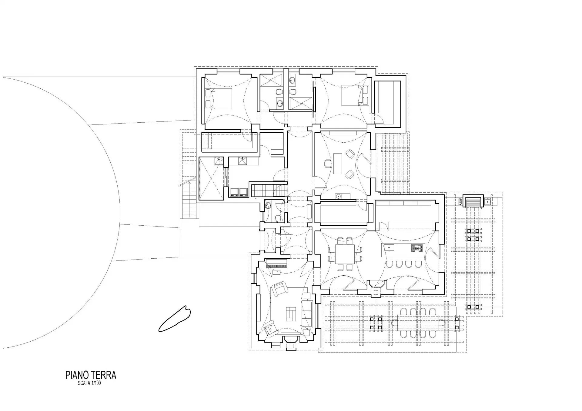
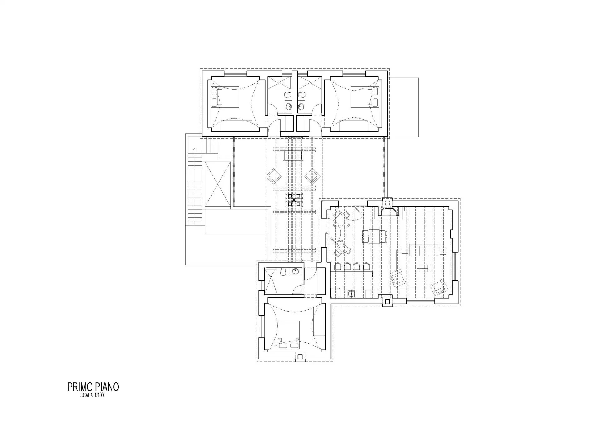
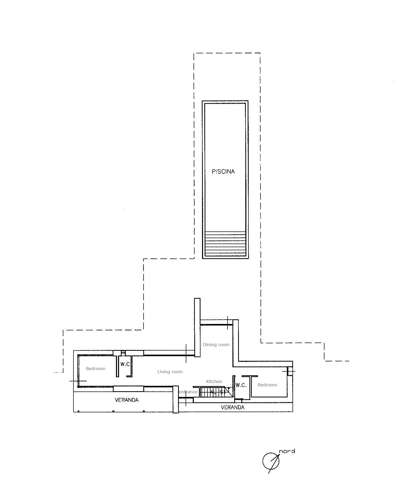
5. Floor Plan and Use
Ground floor (Piano Terra):
Open-plan living and dining area with direct access to the garden
Kitchen area
Two bedrooms
Bathroom and ancillary rooms
Covered terrace (Porticato) for weather-protected outdoor living
Furnished floor plan (Planimetria Arredata):
Illustrates the intended room layout and use.
6. Sections and Elevations
Sezioni:
Depict the building structure including foundations, roof construction and integration of technical areas; highlight the embedding into the gently sloping terrain.
Prospetti:
Front elevation: Modern, bright façade with large windows
Rear elevation: Simple, functional design
7. Landscape Integration
The building is positioned to preserve the existing Trullo and keep it visible
Outdoor areas remain largely green and open
The scale and materials of the new building are in harmony with the surrounding landscape
8. Visualisations
Photorealistic renderings (Render Fotorealistici Spazi Esterni):
Show the harmonious integration of the house into the site and illustrate the interplay between architecture, garden and surrounding landscape.
9. Summary and Added Value
Location: Quiet, close to nature, with regional character
Architecture: Modern, functional design with respect for the historic building
Sustainability: Energy-efficient orientation and potential for renewable energy use
Quality of life: Barrier-free layout, bright rooms, generous garden areas
Approval: The project meets all legal requirements and spatial restrictions
The project combines modern living standards with the tradition and landscape of Puglia, offering an attractive residential concept for both private owners and investors.
🇮🇹 Italiano
1. Panoramica del Progetto
Progetto: Costruzione di una casa unifamiliare a piano unico con integrazione di un edificio rurale tradizionale esistente (Trullo)
Località: Area rurale della regione Puglia, Italia
Progettazione: Soluzioni Tecniche
Documentazione: Elaborati di progetto e costruzione (62 pagine)
Stato del progetto: Fase di progettazione / autorizzazione
L’obiettivo del progetto è realizzare, su un ampio lotto, un’abitazione moderna, efficiente dal punto di vista energetico e integrata nel paesaggio.
2. Terreno e Localizzazione
Superficie del lotto: 9.154 m²
Particelle: 704 e 705
Edificio esistente: Piccola costruzione rurale storica (Fabbricato Esistente), conservata e integrata nel progetto
Caratteristiche del sito:
Ambiente rurale, circondato da uliveti e campi
Buona integrazione nel paesaggio naturale
Zona residenziale tranquilla e immersa nella natura
Mappa Catastale:
Mostra le particelle e i confini del lotto edificabile.
Contesto Paesaggistico:
Veduta aerea dei dintorni con il lotto evidenziato.
3. Parametri Urbanistici e Normativi
Volume massimo consentito: 274,68 m³
Volume previsto: 273,63 m³
Superficie massima consentita: 100,98 m²
Superficie prevista: 100,60 m²
Superficie utile abitabile: 77,51 m²
Aree esterne coperte (Porticato): circa 38,8–50,3 m²
Area parcheggio conforme alla Legge Tognoli: circa 40 m² (richiesta per uso residenziale)
Il progetto rispetta tutte le normative vigenti e i limiti dimensionali.
4. Architettura e Progettazione
Edificio:
Casa moderna a piano unico
Integrazione del Trullo tradizionale esistente
Volume semplice con linee pulite
Orientamento e Sostenibilità:
Vani principali esposti a sud per un’ottima insolazione
Attenta esposizione solare per l’efficienza energetica
Coperture adatte all’installazione di pannelli fotovoltaici
Aree esterne verdi e ampio giardino
5. Distribuzione degli Spazi
Piano Terra:
Zona giorno open-space con soggiorno e pranzo e accesso diretto al giardino
Angolo cucina
Due camere da letto
Bagno e locali di servizio
Terrazza coperta (Porticato) per spazi esterni protetti
Planimetria Arredata:
Mostra la distribuzione e l’uso previsto degli ambienti.
6. Sezioni e Prospetti
Sezioni:
Mostrano la struttura dell’edificio con fondazioni, copertura e integrazione degli impianti; evidenziano l’inserimento nel terreno leggermente in pendenza.
Prospetti:
Fronte: Facciata moderna e luminosa con ampie vetrate
Retro: Aspetto semplice e funzionale
7. Integrazione Paesaggistica
L’edificio è posizionato in modo da preservare il Trullo esistente e mantenerlo visibile
Gli spazi esterni rimangono in gran parte verdi e aperti
Scala e materiali del nuovo edificio sono armonizzati con il paesaggio circostante
8. Visualizzazioni
Render fotorealistici degli spazi esterni:
Mostrano l’integrazione armoniosa della casa nel lotto e il dialogo tra architettura, giardino e paesaggio circostante.
9. Sintesi e Valore Aggiunto
Posizione: Tranquilla, immersa nella natura, con carattere tipico regionale
Architettura: Design moderno e funzionale con rispetto per l’edificio storico
Sostenibilità: Orientamento efficiente dal punto di vista energetico e possibilità di uso di energie rinnovabili
Qualità della vita: Pianta accessibile, ambienti luminosi, ampie aree verdi
Autorizzazioni: Il progetto rispetta i requisiti normativi e i limiti dimensionali
Il progetto unisce le esigenze abitative moderne con la tradizione e il paesaggio della Puglia, offrendo un concept abitativo attraente sia per residenti sia per investitori.la combinazione di cultura, gastronomia e natura
Il progetto integra un Trullo tradizionale esistente con una nuova abitazione moderna a piano unico.
L’architettura rispetta il paesaggio culturale e si ispira alle tipiche costruzioni pugliesi, offrendo al contempo i vantaggi di una casa contemporanea ed efficiente dal punto di vista energetico.
Nasce così una dimora che preserva il carattere autentico della Puglia, garantendo comfort abitativo moderno e un forte legame con la natura circostante.